Skip to main content

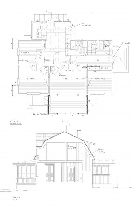
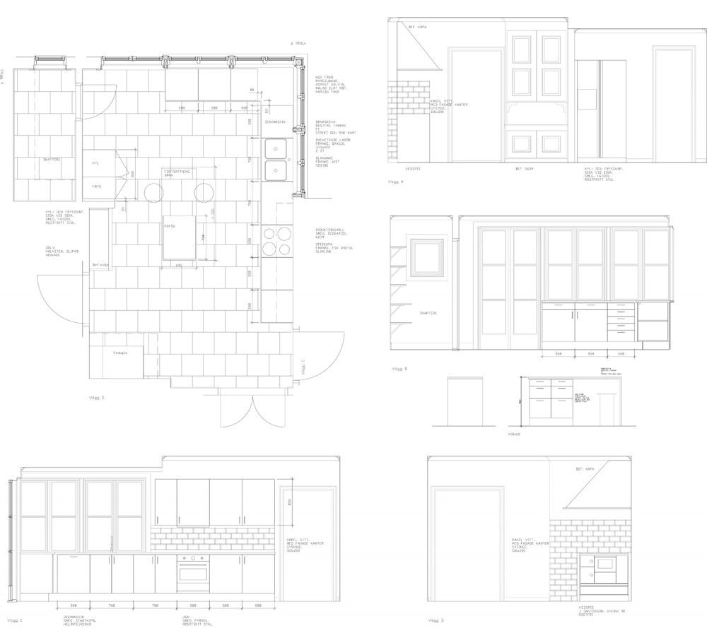
Fritidshus i skärgården

Tillbyggnad och renovering

  • År
    2012
  • Plats
    Värmdö kommun
  • Beställare
    Privat
  • Ansvarig arkitekt
    Jacob Hidemark