Skip to main content
Projekt
Ambassader
Flerbostadshus
Interiör
Kulturarv
Offentligt
Övrigt
Pressklipp
Privatbostäder
Tävlingar
Utbildning
Kontoret
Kontakt
Projekt
Kontoret
Kontakt
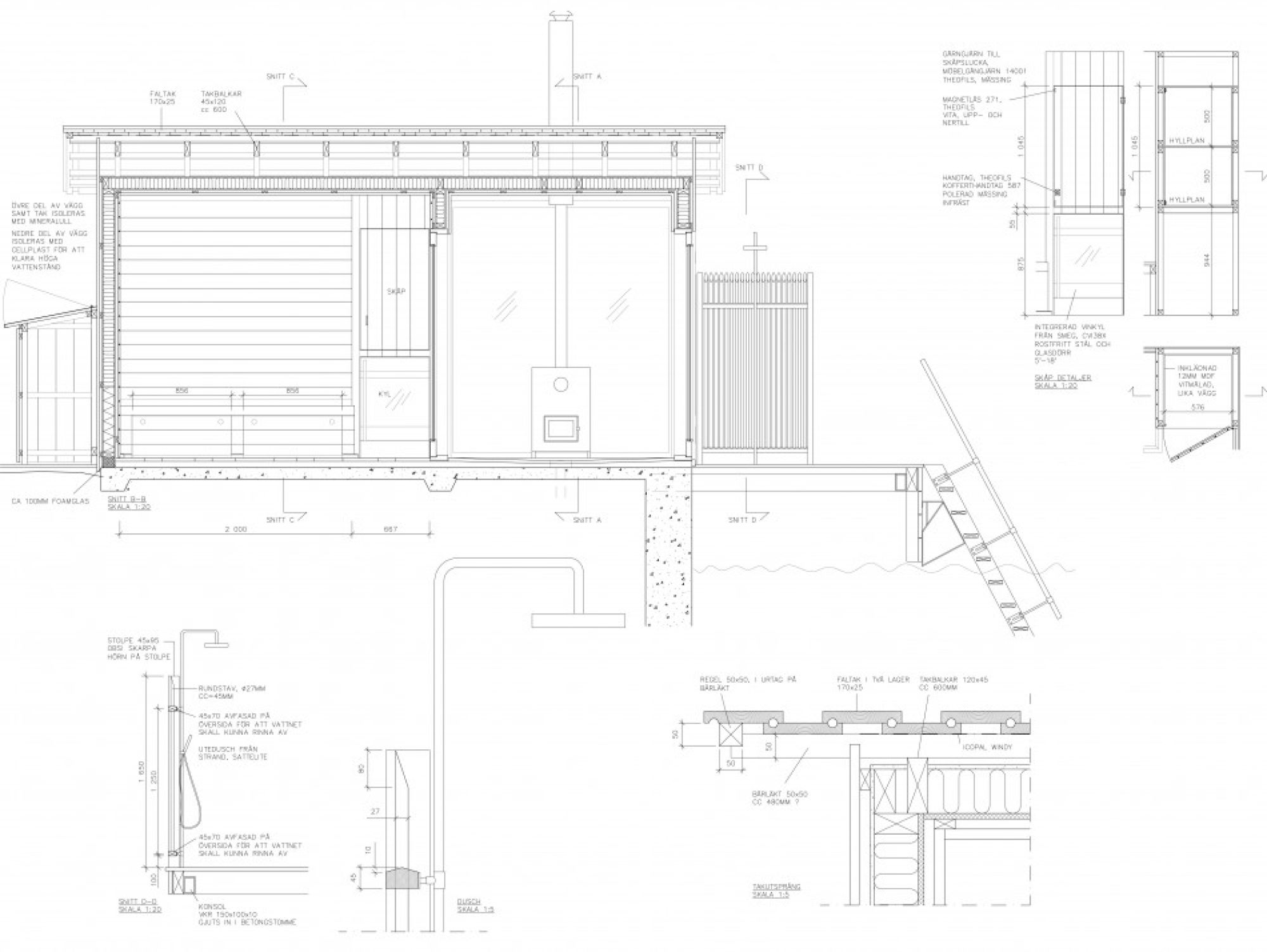
Älgö bastu
Nybyggnation
År
2010
Plats
Älgö, Stockholms skärgård
Beställare
Privat
Ansvarig arkitekt
Jacob Hidemark
Handläggande arkitekt
Jacob Hidemark
Medverkande arkitekt
Malin Persson