Skip to main content
Projekt
Ambassader
Flerbostadshus
Interiör
Kulturarv
Offentligt
Övrigt
Pressklipp
Privatbostäder
Tävlingar
Utbildning
Kontoret
Kontakt
Projekt
Kontoret
Kontakt
Förebild.
Förebild.
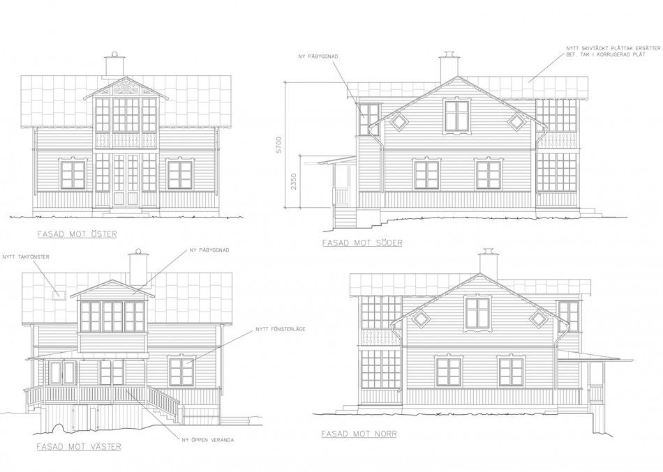
Älgö
Renovering
År
2006
Plats
Stockholms skärgård
Beställare
Privat
Ansvarig arkitekt
Jacob Hidemark
Handläggande arkitekt
Jacob Hidemark
Medverkande arkitekt
Sven Nyström